Transformation Nørrebro

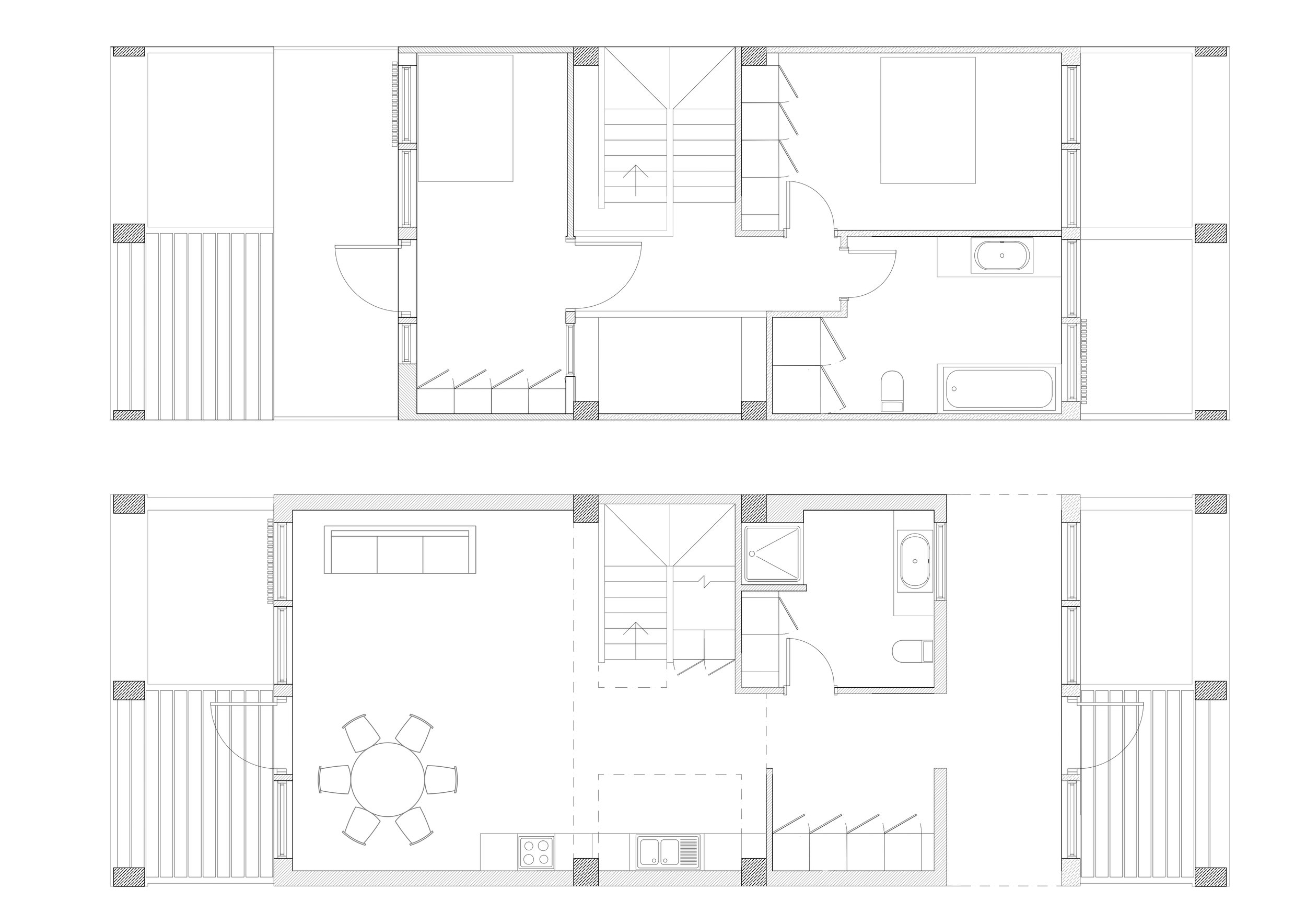
This project explores the transformation of the former job center at Lærkevej 20 in Nørrebro, Copenhagen. The proposal works with the existing concrete structure as a primary architectural resource, seeking to preserve and reactivate the original framework while converting the building into apartments.

Rather than demolishing and rebuilding, the project carefully subtracts from the existing volume. Strategic openings are carved into the building to draw natural light deep into the new homes and to create a stronger visual and spatial connection to the surroundings. These interventions reveal the original concrete structure, which becomes an active architectural element in the new design.

The exposed concrete frame is reinterpreted as an exoskeleton that supports newly added balconies. These outdoor spaces provide shaded areas directly connected to the apartments, extending domestic life beyond the interior while enhancing the facade with depth and rhythm. The outer facades are constructed in timber, introducing warmth and tactility in contrast to the robust concrete structure and emphasizing the dialogue between existing and new.

Light comparison before and after transformation.